Martinsville, Indiana | Kitchen · Primary Bathroom · Flooring
For this 1980s lake-area home, the goal was to modernize key living spaces – including the kitchen, primary bathroom, and main-level flooring. While the scope evolved during planning, we stayed focused on what mattered most and delivered a transformation that elevated both style and everyday function.
The BGW Design Process
At BGW Construction, we know that a successful remodel starts long before demolition day. That’s why we follow a structured design-build process that blends creativity with practicality — ensuring our clients feel informed, confident, and excited about the transformation ahead.
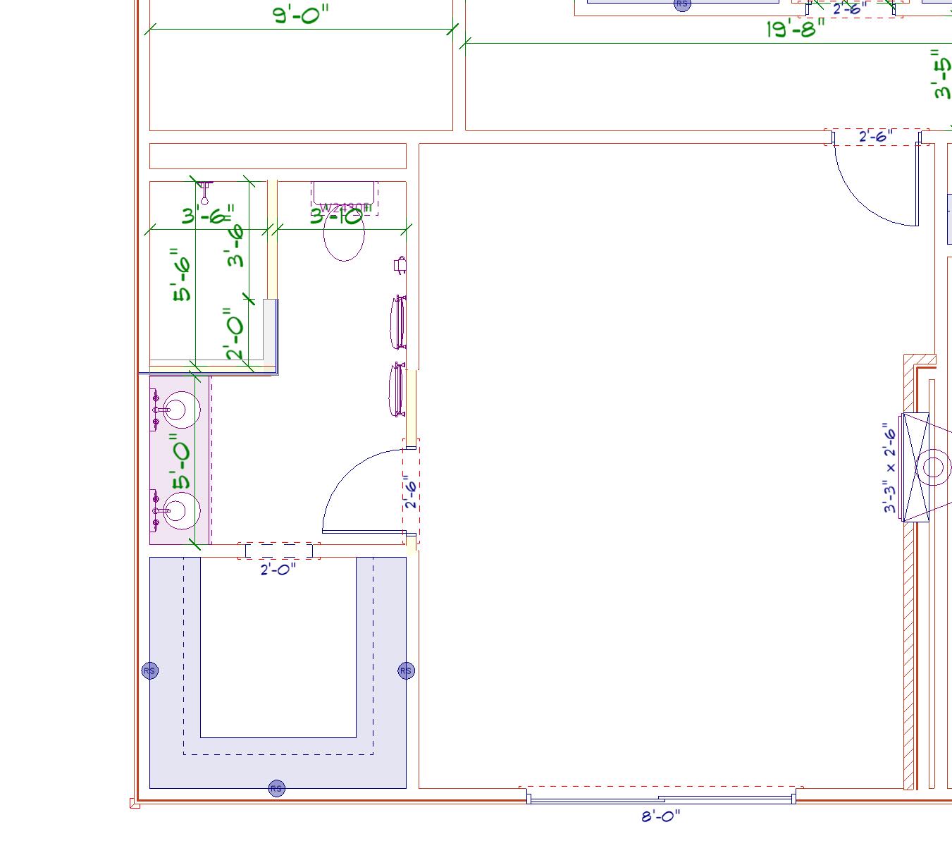
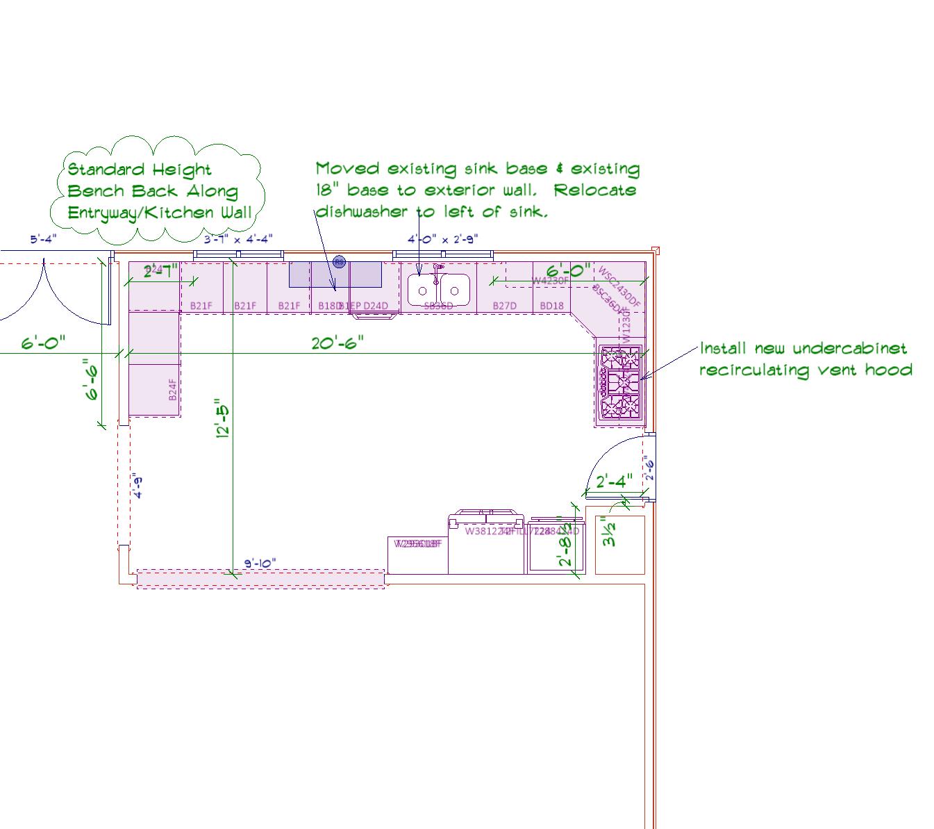
For this 1980s lake house remodel, we began with detailed 3D renderings and floor plans to explore layout changes, cabinet configurations, and design finishes before any construction began. These visual tools helped the homeowners understand how each space — from the double vanity bathroom to the open-concept kitchen — would function and flow in real life.
We used measured plans and interactive layouts to:
- Confirm the positioning of features like walk-in showers, lighting, and cabinetry
- Optimize space for better traffic flow without major structural changes
- Design around existing plumbing and HVAC locations to manage budget
- Review material combinations and color schemes in advance
Bathroom Rendering
Kitchen Rendering
Our clients had full visibility at every stage, from concept sketches to construction-ready layouts. The result? A renovation that reflects their priorities, lifestyle, and style — with no surprises.
🛁 Primary Bathroom Transformation
We began by removing the outdated tub and building a spacious walk-in shower with custom tilework from floor to ceiling. The shower included niche shelving and a sleek glass panel for a clean, open look.
Over the vanity, we installed modern backlit mirrors — a favorite feature of the project — which required some clever electrical rerouting to make it all work seamlessly.
Before
After
🍽 Smart Kitchen Refresh
To stay within budget, we kept the original cabinet boxes — but gave them a fresh new look with updated doors, clean paint lines, and stylish hardware. We adjusted the layout slightly to improve flow without moving any walls or plumbing, and installed new countertops to tie the whole look together.
This wasn’t a full gut-job, but a smart, value-focused refresh that made the kitchen brighter, more functional, and more aligned with the family’s style.
Kitchen Gallery
🏡 Flooring + Finishing Touches
Throughout the main level, we installed luxury vinyl plank (LVP) flooring — including the stair treads — for a clean, cohesive feel. We custom-matched stair nosing to ensure a seamless look across transitions.
To finish things off, we designed and built custom storage benches that fit the home’s mid-century modern aesthetic while adding practical functionality in tight spaces.
🎥Kitchen & Bathroom Remodeling Videos
Playlist
0:39
0:29
0:29
Step inside this beautifully remodeled bathroom featuring a sleek double vanity and LED backlit mirrors. We modernized the primary bathroom by removing the outdated tub, adding a spacious walk-in shower, and installing custom cabinetry and lighting for a clean, functional upgrade.
From raccoon hangout to Airbnb-ready loft. Take a 38-second tour of our step-by-step barn makeover—framing, utilities, reclaimed-wood accents, and a nose-friendly bathroom upgrade—finished May 2025 in rural Indiana.
Dusty hay bales out, modern retreat in! Watch this 30-second before-and-after showing how we transformed a century-old hayloft in Coatesville, Indiana into a rustic-chic living space with a full kitchen and spa-style bath.
Zoom into the details of this kitchen transformation, focusing on the sink, beautiful black countertops, and floating shelves that combine style and function. A perfect solution for maximizing space in a modern kitchen.
Dusty hay bales out, modern retreat in! Watch this 30-second before-and-after showing how we transformed a century-old hayloft in Coatesville, Indiana into a rustic-chic living space with a full kitchen and spa-style bath.
Take a closer look at this efficient kitchen sink area, complete with floating shelves and smart storage upgrades. Pull-out trash bins and vertical storage add everyday convenience without compromising on style.
This wide-angle panning video captures the full layout of our kitchen remodel. Featuring updated cabinet doors, clean black countertops, and wood-look vinyl plank flooring, it’s a great example of how small changes can make a big impact.
Experience a 360-degree view of this stunning kitchen remodel with white shaker cabinets, black countertops, and warm wood flooring. The open layout and fresh finishes create a bright, functional space perfect for everyday living.
Take a quick tour through this beautifully refreshed kitchen, featuring built-in wall ovens, a sleek refrigerator, and cozy custom bench seating. This smart remodel preserved the existing cabinet boxes while updating the look with new doors, hardware, and countertops — all with improved flow and functionality.
✅ Results That Fit Real Life
While the project included some tough choices along the way, the result is a clean, modern space built to match how this family lives day to day. It’s a great example of how thoughtful remodeling can strike a balance between form, function, and financial priorities.
Ready to reimagine your home?
Whether it’s a kitchen, bathroom, or full lower level, we’ll help you transform your space into something functional, beautiful, and built to last.
Let’s make it your favorite room in the house.


























































